Mimarlık Ofisi: addoffice
Statik Müellifi: Kurtaran Mühendislik
Elektrik Müellifi: Güçlü Mühendislik
Mekanik Müellifi: FGM Mühendislik
Proje Yeri: Kocaeli , İzmit
Proje Tipi: Konut
Proje Yılı: 2024
Web Sitesi: addoffice.com.tr
Fotoğraflar: addoffice
Vaha Konutları
Proje Künyesi / Metni
Georges Perec’in bahsettiği gibi ev; ilk hayal mekanıdır ve tüm yaşam buradan türer.
Yer, proje alanı, program ve üst verilerin yönlendirmesiyle potansiyel yoğunluğa kavuşturulduğunda; kendisini çepeçevre saracak sıralı “ev” cephelerinin, ekseriyetle; birbirini ve çeper parselleri dolduran yerleşimleri izleyeceği gözlemlenir. Sıkışık bir kent parçasında var olan yer üzerinde tasarlanması beklenen yoğunluk değeri yüksek konut bloklarının birbiri, çeperi ve yer’i ile olan ilişkileri sorunsal olarak değerlendirilir ve sorulur;
bir gündelik devinim mekanı olarak “ev” nedir?
Alışılagelen sosyal konut tasarlama hali, modüler birtakım blokların peşi sıra dizilmesi ile başlar; sirkülasyon holü ile bütünleşik düşey sirkülasyon elemanlarının yerleştirilmesiyle devam eder ve nihayetinde birbirini sistematik olarak tekrar etmesi beklenen; öyle ki hedeflenen, ev’lerin cephe izinde dizilmesiyle tamamlanır. Geçmişe dayalı deneyimler silsilesinin yanı sıra topluma içkin dürtüsel ve didaktik beklentiler göz önüne alındığında; sosyal konut birimlerinde gündelik yaşamını sürdüren bireyin, kendinden türeyen ilgili mekanlar bütününü biricikleştirmesi; özerklik ve mahremiyet ilkelerinin kapsayan ihtiyaçlarını karşılaması, komşuluk ilişkileri geliştirmesi, doğa ile hemhal olan varoluşu hissetmesi ve böylelikle yerini, yaşayan bireysel organik mekan olan “ev” haline getirmesi ihtimal dışı kalır.
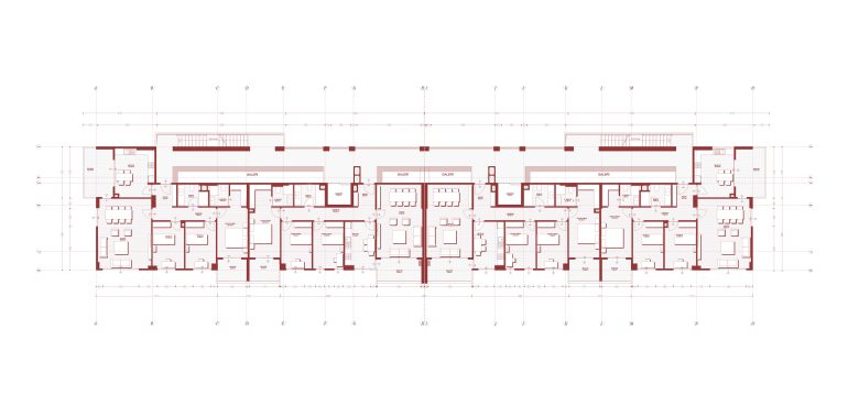
Anlatısı yapılan deneyim, pratik ve gözlem yığını ışığında tasarım; yapı bloklarının lineer cephe kurgusu boyunca süregeldiği; ev’lerin yapı içerisinde tek yönlü yerleştiği ve tek yönlü yerleşim ile birlikte kurgulanan 78 ev’e ait her yaşama mekanının yerin, proje alanının, çekirdek bölgesinden türeyen ve onu sararak dönüştüren Vaha’yı seyreder konumda bulunduğu kurgu üzerinden şekillenir.
Yapı katlarına, yüzünü çeper parsellere dönen ve bu sayede tüm ev’lerin Vaha’ya yönelmesini mümkün kılan açık koridor sistemi ile varılır. Açık koridor sistemi, Vaha ile kurduğu görsel ilişkiyi fiziksel erişilebilirlik ilkelerini kapsayarak güçlendirir. Ihlamur kokuları Vaha’dan yükselir, kat holünü doldurur; onu yaşayan, devingen ve dönüşken sosyal ev parçası haline getirir. Öyle ki, kat holünde kitaplar okunur, oyunlar kurulur, sohbetler edilir. Açık koridor sistemine takılan köprüler ile her ev özerk girişine sahip olur. Ev köprüleri, gündelik yaşantının eşiği, zamanla biricik hale gelir; özelleşerek ev’e ait bir uzantı halini alır. Katlar boyunca ev köprüleri arasında kesintisiz devam eden galeri boşlukları, yapısal düşey ilişkinin kurulmasını sağlar. Böylelikle sosyal konut çeperinde komşuluk ilişkileri ile öncelendirilen, toplumsal sürdürülebilirlik ve sosyal bir aradalık, yer boyunca bireye eşlik eder.
Vaha’nın doğa ile bütünleşik sakin dokusunun ev’e sızdığı kadar ev’de geçen gündelik yaşamın Vaha’ya taşması kurgulanır; bahsi geçen döngüsellik, süregelen yaşantıya yeni bir tanım ve olanak sunar. Vaha, endemik bitki ve ağaç türleri, aromatik bahçeler, buluşma terasları, çocuk oyun alanları, yürüyüş parkurları, yüzme havuzu ve havuz kenarı dinlenme noktaları ile tamamlanır.
Yer, proje alanı, program ve üst verilerin yönlendirmesiyle potansiyel yoğunluğa kavuşturulduğunda; kendisini çepeçevre saracak sıralı “ev” cephelerinin, ekseriyetle; birbirini ve çeper parselleri dolduran yerleşimleri izleyeceği gözlemlenir. Sıkışık bir kent parçasında var olan yer üzerinde tasarlanması beklenen yoğunluk değeri yüksek konut bloklarının birbiri, çeperi ve yer’i ile olan ilişkileri sorunsal olarak değerlendirilir ve sorulur;
bir gündelik devinim mekanı olarak “ev” nedir?
Alışılagelen sosyal konut tasarlama hali, modüler birtakım blokların peşi sıra dizilmesi ile başlar; sirkülasyon holü ile bütünleşik düşey sirkülasyon elemanlarının yerleştirilmesiyle devam eder ve nihayetinde birbirini sistematik olarak tekrar etmesi beklenen; öyle ki hedeflenen, ev’lerin cephe izinde dizilmesiyle tamamlanır. Geçmişe dayalı deneyimler silsilesinin yanı sıra topluma içkin dürtüsel ve didaktik beklentiler göz önüne alındığında; sosyal konut birimlerinde gündelik yaşamını sürdüren bireyin, kendinden türeyen ilgili mekanlar bütününü biricikleştirmesi; özerklik ve mahremiyet ilkelerinin kapsayan ihtiyaçlarını karşılaması, komşuluk ilişkileri geliştirmesi, doğa ile hemhal olan varoluşu hissetmesi ve böylelikle yerini, yaşayan bireysel organik mekan olan “ev” haline getirmesi ihtimal dışı kalır.
Anlatısı yapılan deneyim, pratik ve gözlem yığını ışığında tasarım; yapı bloklarının lineer cephe kurgusu boyunca süregeldiği; ev’lerin yapı içerisinde tek yönlü yerleştiği ve tek yönlü yerleşim ile birlikte kurgulanan 78 ev’e ait her yaşama mekanının yerin, proje alanının, çekirdek bölgesinden türeyen ve onu sararak dönüştüren Vaha’yı seyreder konumda bulunduğu kurgu üzerinden şekillenir.
Yapı katlarına, yüzünü çeper parsellere dönen ve bu sayede tüm ev’lerin Vaha’ya yönelmesini mümkün kılan açık koridor sistemi ile varılır. Açık koridor sistemi, Vaha ile kurduğu görsel ilişkiyi fiziksel erişilebilirlik ilkelerini kapsayarak güçlendirir. Ihlamur kokuları Vaha’dan yükselir, kat holünü doldurur; onu yaşayan, devingen ve dönüşken sosyal ev parçası haline getirir. Öyle ki, kat holünde kitaplar okunur, oyunlar kurulur, sohbetler edilir. Açık koridor sistemine takılan köprüler ile her ev özerk girişine sahip olur. Ev köprüleri, gündelik yaşantının eşiği, zamanla biricik hale gelir; özelleşerek ev’e ait bir uzantı halini alır. Katlar boyunca ev köprüleri arasında kesintisiz devam eden galeri boşlukları, yapısal düşey ilişkinin kurulmasını sağlar. Böylelikle sosyal konut çeperinde komşuluk ilişkileri ile öncelendirilen, toplumsal sürdürülebilirlik ve sosyal bir aradalık, yer boyunca bireye eşlik eder.
Vaha’nın doğa ile bütünleşik sakin dokusunun ev’e sızdığı kadar ev’de geçen gündelik yaşamın Vaha’ya taşması kurgulanır; bahsi geçen döngüsellik, süregelen yaşantıya yeni bir tanım ve olanak sunar. Vaha, endemik bitki ve ağaç türleri, aromatik bahçeler, buluşma terasları, çocuk oyun alanları, yürüyüş parkurları, yüzme havuzu ve havuz kenarı dinlenme noktaları ile tamamlanır.



























































