DAC
Bültenimize Kayıt Olun!
  • Dünyadan Mimarlık
  • DAC EDITO
  • Tasarım Marka
  • Mimari Proje
  • DAC Öneriyor
  • DAC Bülten
  • Hakkımızda
  • İletişim
DAC
Mimarlık ve tasarım dünyasında markalar ve meslek insanlarını bir araya getiren multidisipliner ve global yaratıcı ajans.
DAC
  • Dünyadan
    Mimarlık
  • DAC
    EDITO
  • Tasarım
    Marka
  • Mimari
    Proje
  • DAC
    Öneriyor
Gündemdekiler

Aralık Ayı – Güncel Sergiler

OBJECT Rotterdam’ın Yeni Mekanı

Jami At-Taqwa Mosque Cibinong

Özüm Ezgi Satılmış Röportaj

ODTÜ 8
ODTÜ 6
ODTÜ 7
ODTÜ 1
ODTÜ 2
ODTÜ 5
ODTÜ 4
ODTÜ 3

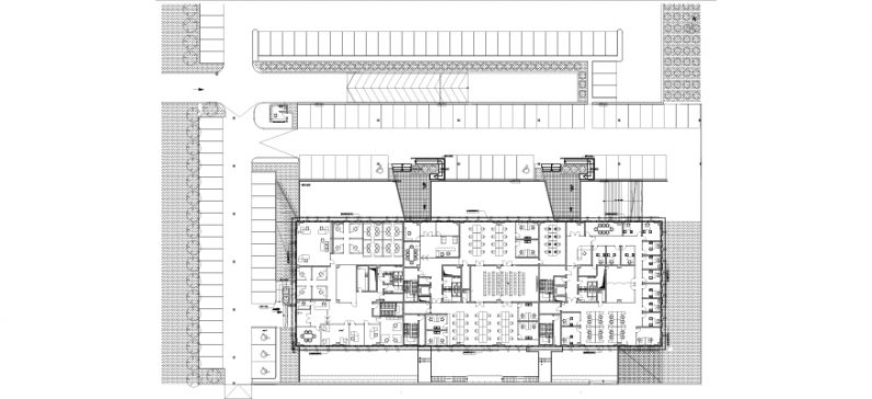
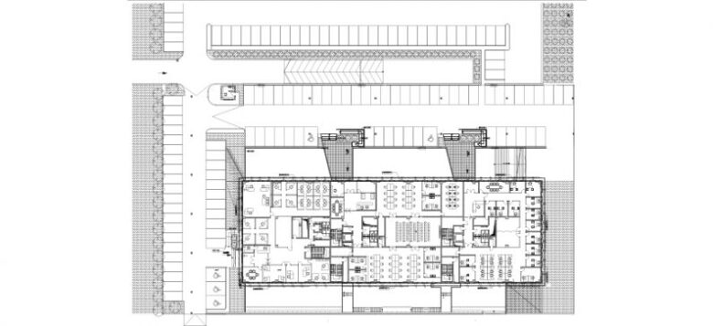
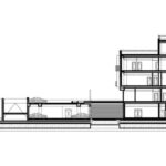
Odtü Teknokent Satgeb-2 Arge Binası

Tece Mimarlık

Mimarlık Ofisi: Tece Mimarlık
İşveren: Teknokent A.Ş
Projenin Yeri: ODTÜ / Ankara
Proje Tipi: AR-GE
Proje Yılı: 2015-2017
Web Sitesi: http://www.tecemimarlik.com/

Beğendiniz mi?
Paylaş! Paylaş! Pinterest'te Paylaş! Email ile Paylaş!
Önceki Proje Sonraki Proje
  • Hakkımızda
  • Reklam
  • İletişim
  • DAC JOBS | Kariyer
  • Bülten Arşivi
  • Gizlilik ve Güvenlik
dacistanbul

© 2020 | DAC İstanbul | Tüm Hakları Saklıdır

Üzerinde hala çalışıyoruz. İlgili bölüm çok yakında yayında olacak!