Mimarlık Ofisi: CM Mimarlık
İşveren: Gemak Tersanesi
Projenin Yeri: Altınova / Yalova
Proje Tipi: Ticari
Proje Yılı: 2017 – 2020
Web Sitesi: https://cmmimarlik.com.tr/
Gemak Tersanesi Yönetim Binası
Proje Künyesi / Metni
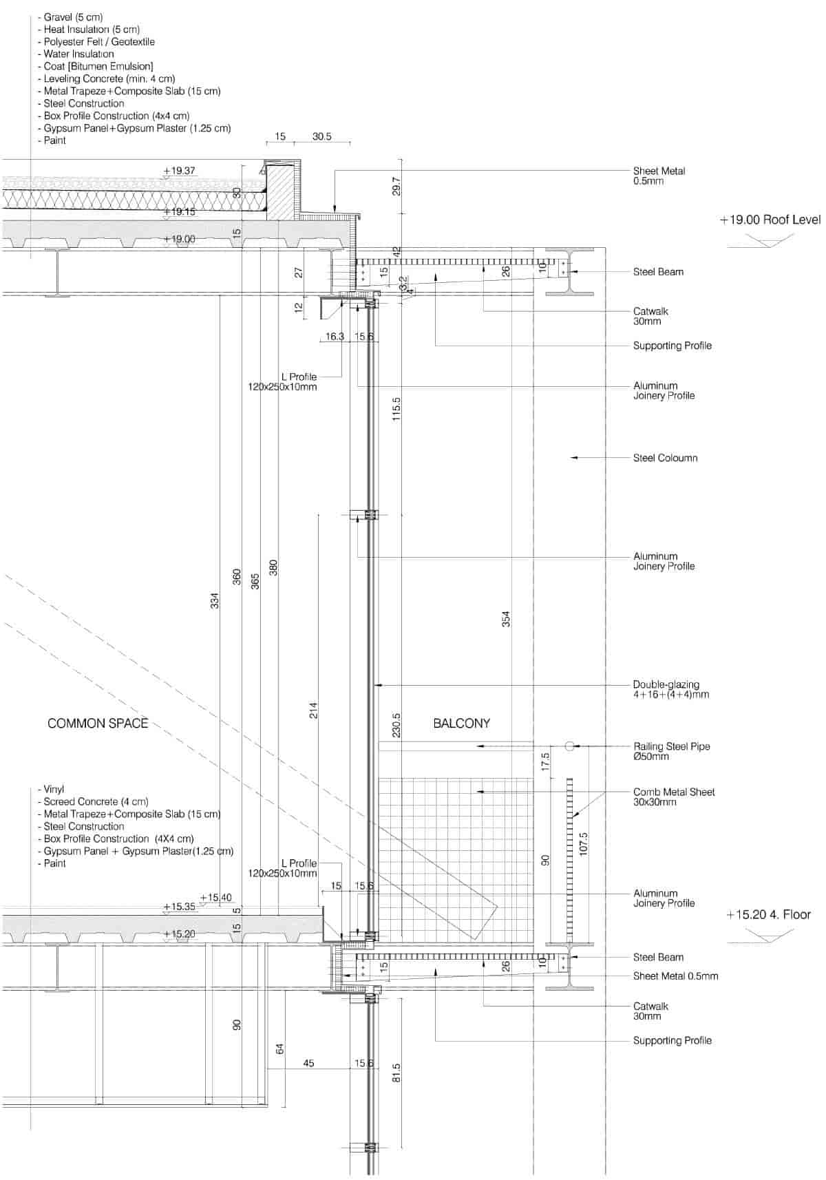
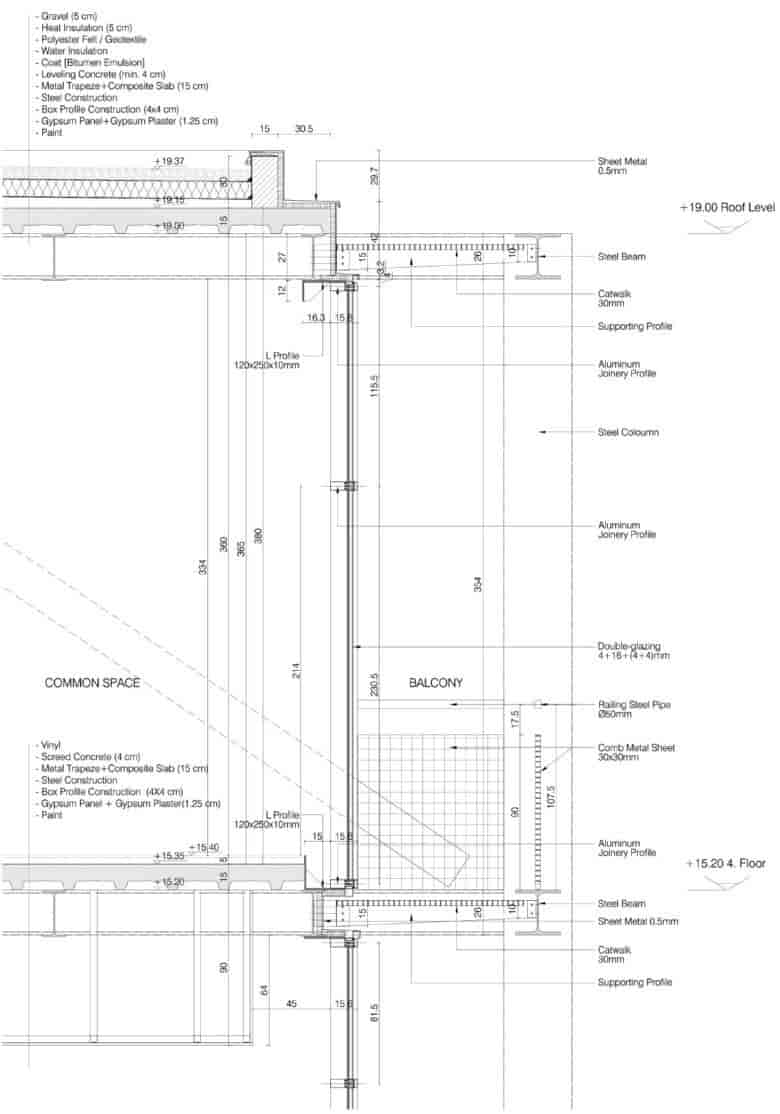
Ofis binası Marmara Denizi’nin güney doğu kıyısında körfezin girişinde yer alan tersanenin içerisinde bulunmakta. Dünyanın her yerinden bu tersaneye şilepler, gemiler geliyor ve onarılıp, bakımı yapılıyor ve yollarına devam ediyor. Çelik malzeme, boya ve raspa işlemi, metal sesi buranın bir gerçeği. Yapıyı tasarlarken tersanenin bağlamından etkilenildi. Gerek malzeme kullanımı gerekse de gemi konstrüksiyonu ve gemi elemanları sabit yapı için nasıl bir yapı elemanı haline gelebilir sorusuna aranan cevaplar ile tasarım ilerledi. Yapı boyuna iki dilime ayrılarak iki dilimin arasına yerleştirilen sirkülasyon, servisler, ıslak hacimler ile birbirine eklemlendi (artiküle edildi). Tek kollu bir merdivenin yer aldığı bu artikülasyonda katlara sahanlıklardan dağılarak girilebiliyor ve merdiven 3. Kattan sonra açığa çıkarak en üst katta yer alan ve tersaneye adeta bir kaptan köprüsü gibi bütün bir bakışı sağlayan kafeteryaya ulaşıyor. Yapı deniz tarafını ve gemileri, atölyeleri şeffaf bir cepheden izler bir konumda. İç mekân tasarımı esnek ve değişebilir partisyonlardan oluşmaktadır. İç mekânda gereklilik olmadıkça bir kaplama kullanılmadı. Yapının konstrüksiyonu ve strüktürel kurgusu içeriye de taşınmış oldu. Yönlere bağlı güneş kırıcı elemanlar veya cepheyi içeri çekerek oluşturulan yapısal kurgusu ve cephe dili ile her ne kadar bir ofis programına sahip olsa da içinde bulunduğu yer ve hizmet sektörü nedeniyle çevresindeki endüstriyel yapılara, vinçlere (crane) , liftlere atıf yapmaktadır. Endüstrinin kullanmadığı hiçbir şeyi içermeyen fikri ve çıplak estetiği yapıyı tasarlarken önemli ölçütlerden ve niyetlerden biriydi. Yapı tamamıyla çelik konstrüksiyon olarak tasarlandı ve inşa edildi. Yapı bir bodrum kat içermiyor. Ayak izinde olduğu gibi yükseliyor. Zemin katta fazla derin olmayan bir temel teknolojisi ile tüm taşıyıcılar rasyonel bir şekilde yükseliyor ve strüktür kendini tamamlıyor. Yapının boyuna iki dilim düzgün bir geometri içinde kayarak durması ile kütlesel bir kararlılık sağlıyor. Adeta bir şilep gibi yerine yanaşmış, ilişmiş ve gerektiğinde gitmeye hazır bir sonlu yapı fikri için daha iyi bir yer düşünülemez.





















