Mimarlık Ofisi: CM Mimarlık
İşveren: Açık Radyo
Projenin Yeri: Tütün Deposu, Tophane / İstanbul
Proje Tipi: Kültürel / Yenileme
Proje Yılı: 2012 – 2013
Web Sitesi: https://cmmimarlik.com.tr/
Fotoğraflar: Senem Sinem, Özlem Yılmaz
Açık Radyo 94.9
Proje Künyesi / Metni
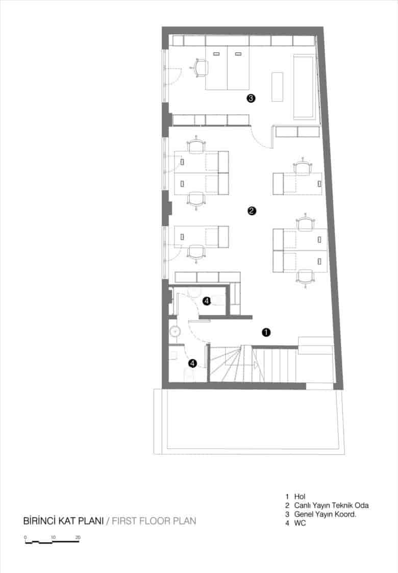
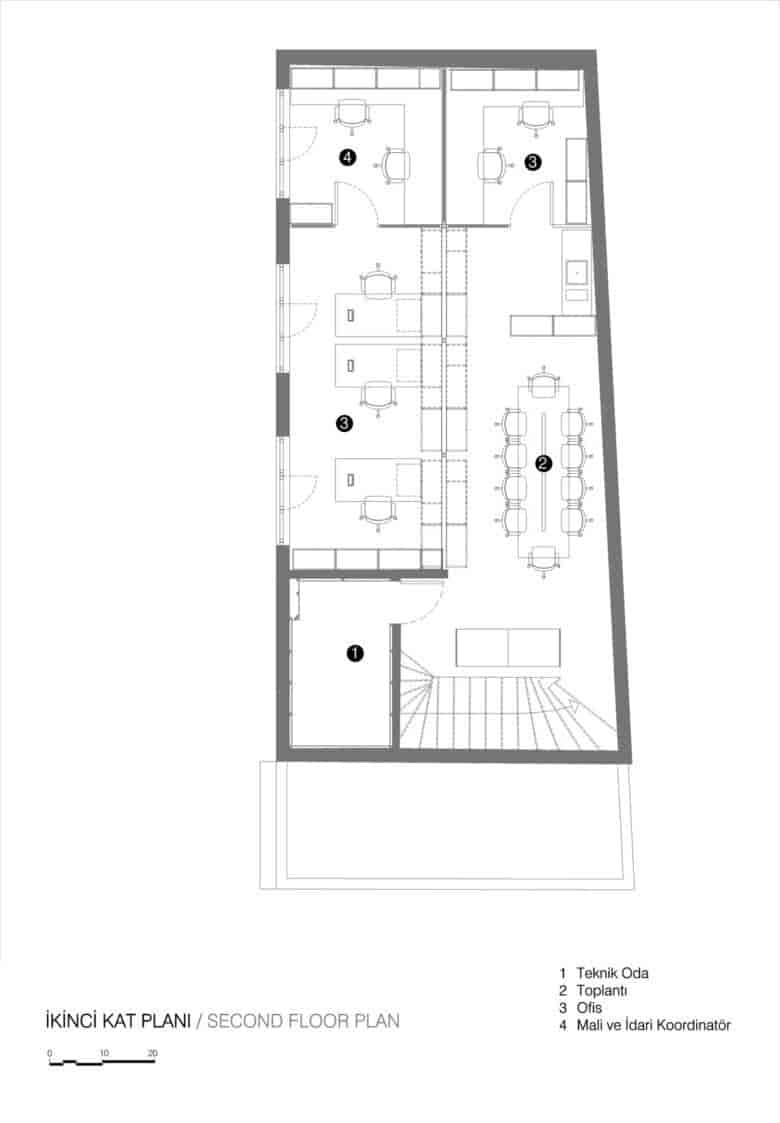
AÇIK Radyo 1995 sonbaharında 92 ortaklı bir şirket olarak kuruldu. Yaklaşık 16 sene İstanbul/Elmadağ’da işhanı olarak kullanılan bir apartmanın 5. ve 6. katlarında yayın hayatını sürdürdü. Binanın otele dönüştürülmesi söz konusu olunca yaklaşık 1 yıl yer arama sürecine girişildi. Bir radyo için uygun bir mekan bulmak pek de kolay bir şey değil. Stüdyolar için yer çıkarmalı, radyo dalgaları açısından Çamlıca ile irtibatı kesik olmamalı ve Açık Radyo’ya özel olarak gönüllü programcının ulaşımını gece-gündüz zahmetsiz sağlamalı. Bu kıstaslar dahilinde Tophane mevkiinde Depo adı ile bilinen kültür sanat merkezinin bitişiğinde, aynı avluyu kullanan 3 katlı karma strüktür eski bir imalathane yapısında karar kılındı. Canlı yayın ve prodüksiyon stüdyoları giriş katta birer yüzer “kutu” olarak kuruldu. Üst iki kata ise Radyo’nun ofisleri yerleşti. Yapının avlu tarafına cephe oluşturan imalathaneye dair tedarik ve servis kapıları muhafaza edildi. Bunlardan biri de giriş Radyo girişi olarak kullanıldı ve bir giriş saçağı ile giriş holü olarak kuruldu. Yapının zeminden yaklaşık 60 cm. yüksek olmasından da faydalanarak metal strüktür giriş elemanı ile birlikte tasarlanan dış mekan oturmaları, bu baza ile ilişkilendi. Bu avlu Açık Radyo mahalleye gelmeden önce de gerek Depo dahilinde çocuklara verilen sanat etkinliklerine gerekse de avluya bakan meskenler için kapı önü oturmalarına, sohbetlerine ortak mekan teşkil ediyordu. Biz buna böylece Radyo çalışanlarını ve konuklarını da ilave etmiş olduk. Kırma çatılı yapının çatı strüktürünü, betonarme döşemelerin ahşap kalıp izi yüzeylerini, muhtelif çelik takviyeleri, kalan bazı çini karoları ve dökme mozaik merdivenleri yapı belleği ve zamanının yapı teknolojisini kapatmamak adına koruduk ve göstermeye çalıştık. İlave gelen yapı elemanlarının bu izleri kapatmadan tümlemesini tercih ettik. İmalatlar Açık Radyo’nun tabiatına uygun bir şekilde gelişti ve tamamlandı. Gönüllü destek ve kollektif hareket ile yayın hayatını sürdüren Açık Radyo 94.9 için kimi malzeme tedarikçilerimiz ve uygulamacılarımız gönüllü destekçilerimiz oldu. Bizim için sadece bir mimari çalışma ile sınırlı olmadı. mahallesinin, dinleyicisinin, katılımcısının aktör olduğu bir süreçti.



















